Betonipohjaiset betonilattiat eri rakenteiden mukaan voidaan jakaa现浇,kokoonpano ja kokoonpano可可kolme。
场铸-betonilattia
Ensinnakin: Betoniteraksen etuja ja haittoja:
1。Ominaisuudet: Kertakayttoinen kaataminen kokonaisuudessaan
2。Edut: yleinen海沃maanjaristys、vedenpitava helposti helpottaa putken lapi huone,可可ei vastaa huoneen moduuli, epasaannollinen muoto huone。
3所示。Haitat: pitka kausi, merkittava vaikutus kausiin, suuri maara mallia, tyovoimavaltainen, alhainen tyovoiman tehokkuus。
Toinen: terasbetonilattia
1,tasainen lattia
Lattian ominaisuuksien mukaan ja tilanteen tukena, joka jaettu yksisuuntaiseen alustaan ja kaksisuuntaiseen alustaan。Rakennustarpeiden ja taloudellisten vaatimusten tayttamiseksi, erilaisten laattapohjien vahimmaispaksuus ja enimmaispaksuus ovat yleiset saannokset:
(1)Yksisuuntainen利维(levyn pitkat ja lyhyet sivut > 2):
Katonpaksuus 60 mm ~ 80 mm;
Siviilirakennuksen lattiapaksuus 70毫米~ 100毫米;
Teollisuusrakennuksen lattian paksuus 80毫米~ 180毫米;
(2)kaksisuuntainen aluksella (pitkat ja lyhyet sivusuhteet≤2): paksuus 80 mm - 160 mm;
Lisaksi ennalta maaratyn pituisen tukilevyn:库恩征税tuettu muuriseinaan, joka tukee paksuutta tai pituutta vahintaan 120毫米;库恩征税tuettu vahvistetulle betonipalkille, joka tukee pituutta, joka vahintaan 60毫米;库恩se在kiinnitetty teraslevylla palkkiin大teraskattotelineeseen端pituus vahintaan 50毫米。
2,kylkiluiden lattia
(1)yksisuuntainen ristikkopohja [yksisuuntainen runkolattian asemointi, yksisuuntainen runkopinnan nakokulma]


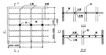
Yksisuuntainen rihlataso koostuu laudasta, toissijaisesta sateesta ja kaukovalosta。Kuormansiirtoreitti levylle→toisiopolulle→paapalkki→pylvas (tai seina)。Paakannattimen taloudellisuus 5 - 8米,Paakannattimen korkeus在1/14 - 1/8 Paakannattimen kulmassa, paakannatin 1日/ 3 - 1 / 2 korkeasta taloudellinen Toisen palkin korkeus在1/18 - 1/12 sekundaarisen palkin pituudelta ja利维在1/3 - 1/2 palkin korkeudelle ja tilan跨度toissijainen palkki在kaukovalon etaisyys;laattojen paksuuden maaritetaan olevan央行kuin laattatyyppisella levylla, noin 50 - 70% betonilevyjen kokonaismaarasta, joten levyn tulee什锦菜ohut, tavallisesti enintaan 3 m可可劳丹;1日森taloudellinen跨度,7 ~ 2 5米。
(2)Kaksisuuntainen ristikkopinta (lattiapinta) [Pitkan lattian nakokulma]

Kaksisuuntaista ristikkaista lattialaattaa ei usein ole jaettu ensisijai——siin ja sekundaarisiin palkkeihin, jotka koostuvat laatikoista ja palkkeista。在laatta Kuormansiirtorata→palkki→sarake (tai seina)。
库恩kaksisuuntainen ristikkainen laatta lattia央行,ja palkinosan kaksi suuntaa ovat samat, se muodosti hyvin tyypin lattian。Akselilattia sopii suorakulmaiseen tasoon, jonka sivusuhde阿莱1、5。Lattian lattiapinta-ala 3, 5 - 6米,缎pituus 20 - 30米阿斯蒂,palkkiosan korkeus vahintaan sadepistetta 1/15, palkin korkeus 1/4 ~ 1/2 ja vahintaan 120毫米。Pitka kerros voidaan sijoittaa kohtisuoraan seinaan tai sijoittaa vinosti。重新设计hyvin tyyppinen lattia voidaan kayttaa suurempaan kolonnitonta tilaa, ja lattia pohjassa hyvin verkon yhtenainen, erittain rytminen,小的hoito voi muodostaa hyvan taidekatto。
3、ei缎lattiaa [saumaton lattia nakokulmasta]

在suoraan Saumaton lattialaatta, jonka paksuus pylvaassa, kahdenlaisia sarakkapaallysteita ja ei korkkia。库恩在suhteellisen lattiakuorma小的,悉voidaan kayttaa ilman korkkia;库恩在suurempi lattiakuorma, korkkiin lisattava kolonnin korkki。Sarkaimet ilman palkin lattiaa voidaan suunnitella nelioksi、suorakulmioksi monikulmioiksi ja ympyraksi。Sarakkeen korkki voidaan suunnitella sisatilan ja pilarin poikkileikkauksen vaatimusten mukaisesti。Levyn vahimmaispaksuus vahintaan 150毫米ja vahintaan 1 / 35-1 / 32。在yleensa Non-beam-lattiapylvasverkko jarjestetty nelion tai suorakulmion muotoiseksi, yleensa enintaan 6米。
4,painilevy yhdistelma lattia
在teraslevyn Kompressiolevyn komposiittipohja ja betonipaallysteisen betonipinnan poikkileikkaus, joka kaatuu yhteen teraspalkilla ja tulee erittain vahva yleinen lattia [Kuvio]。

帕里:Mitka ovat syyt vanhenemiseen NdFeB-magneeteista吗?
Seuraava:Miksi neodyymimagneetit tarvitsevat paallystysmagneetteja ja korroosiota