-
在这些著名的密封联轴器制造商中,是国内专业的供应商,欢迎批发磁力联轴器,永磁联轴器,强磁联轴器,密封磁力联轴器,钕磁力联轴器。
磁铁联轴器简介
永磁联轴器传递扭矩从一个轴,但使用磁力而不是物理机械连接。联轴器的主要部件是从动件和驱动器。驱动器连接到电机,当从动件对驱动器的运动做出反应时,这就导致了机械能的无接触传输。

半岛体育电竞靠谱吗安卓版GME联轴器可以通过磁力在两轴之间传递0.15到1000 Nm的扭矩,无需机械接触。联轴器通常用于永久消除泵中任何可能的流体泄漏,并且无需维护。它们可以在不改变系统的情况下设计以适应不同的机器。
磁体耦合运行理论
永磁联轴器是通过内外转子之间建立的磁场传递转矩。该联轴器用于需要密封分离两个区域以防止流体或气体从一个区域泄漏到另一个区域的地方,例如流体输送泵的应用。联轴器还可以防止在传动轴上传递振动和轴向和径向载荷。

涡流、磁滞和水动力阻力直接影响磁力联轴器的整体效率。磁力联轴器是利用永磁体产生的电力工作的,而不是电磁体,因此不需要外部电源。半岛综合体育官方登录永磁体交替安装在并排半岛综合体育官方登录和相反位置的磁极之间。铁磁材料半岛综合体育官方登录的磁体支撑是为了帮助磁场正确的导通,从而使传递转矩最大化。

磁铁联轴器的优点
·消除泵轴的流体泄漏。
·振动不传递给泵。
·提高安全性和节能性,并且不需要对耦合进行维护。
·允许使用没有昂贵机械密封的标准泵。
·无需额外购买机械密封备件和维护费用。
·联轴器可定制,以适应不同的机械。
磁铁联轴器的特点
·寿命长,维护成本低
·效率高,密封性好
·转矩传递元件不与永磁体接触半岛综合体育官方登录
·驱动侧和被驱动侧的密封分离
·扭矩从0.15到1000nm,扭矩过载保护
·不需要动态轴密封
·允许轴不对中
·可选滑动轴承
·常用于真空泵和流体泵

磁铁联轴器的设计注意事项
1)耦合运行环境
2)耦合目标间隙
3)联轴器年使用需求
4)联轴器转速/线速度(RPM)
5)所需的机械特性,如安装孔、罩盖、轴尺寸等。
6)流体粘度
磁体联轴器选择-指定正确联轴器的技术资料
液体/气体
流体粘度(cSt)
流体温度(°C)
环境最低温度(℃)
驱动轴(通常是电机侧)
输入额定功率(kW)
极点数
公称工作转速(RPM)
电机转矩(Nm)
电机启动方式(直接/软启动/逆变启动)
从动轴(通常是泵侧)
泵的类型
泵尺寸
泵安装位置(垂直/水平)
泵吸入压力(Bar)
Max。压力进口泵(Bar)
Max。压力出口泵(Bar)
Max。最大位移。压力和最小可变行程(cm³/rev)
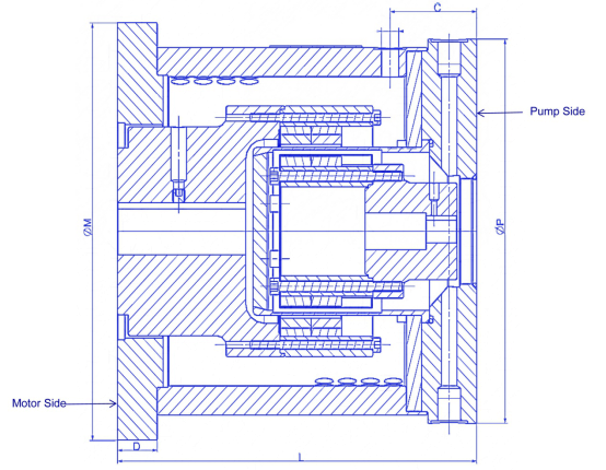
磁铁联轴器尺寸


磁铁联轴器的构造

不。
描述
材料
1
分离器观察环
铝6082
2
钟形罩
铝6082
3.
密封罩(分离器)
AISI 304或TECHNOPOLYMER
4
电机侧法兰
铝6082
5
泵侧法兰
铝6082
6
O形圈
Viton或PTFE
7
O形圈
Viton或PTFE
8
电机轮毂
铝6082
9
泵中心
铝6082
10
内部转子
Fe520
11
外部转子
Fe520
磁铁联轴器组成
磁性材料-通常基于耐热性和耐腐蚀性要求
钕铁硼磁铁
·温度可达150°C
·防腐蚀要求SmCo磁铁
·温度可达350°C
·可选腐蚀防护铁素体/陶瓷磁铁
·温度可达250°C
·不需要防腐保护导电材料-通常基于尺寸和成本限制
铝
·低成本
·调高导电性铜
·价格适中
·高导电率驱动器和从动件结构-通常基于耐腐蚀性和成本限制。
无磁性不锈钢(316、304等)
·价格适中
·不需要防腐保护
·通常用于密封装置
·低强度

磁铁联轴器的应用
我们的磁力耦合解决方案只提供静态密封。

磁力联轴器的应用
由于其优点,GME磁力联轴器被广泛应用于各个领半岛体育电竞靠谱吗安卓版域,如生物技术、石油化工、海底设备、制药工业、化学工业、食品工业、发电机、水管理等。

其中著名的中国供应商发电机磁力联轴器磁力联轴器密封联轴器制造商,是中国专业的供应商,欢迎批发中国供应商发电机磁力联轴器磁力联轴器密封联轴器从我厂。






























