-
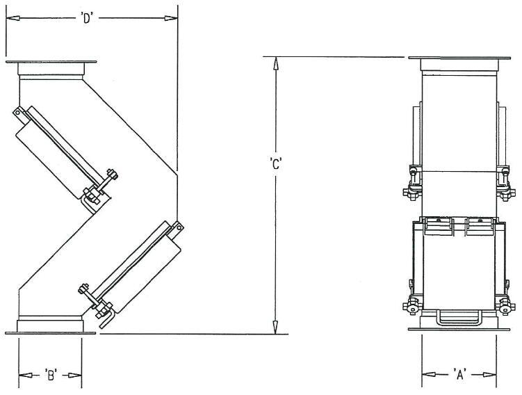
磁驼峰,是一个在线磁铁提取黑色金属从气动输送系统。防尘镀锌钢驼峰包含两块强大的磁性板,彼此成直角。
通过输送系统的物料通过驼峰均匀分布,穿过磁铁,湍流小,不堵塞。半岛综合体育官方登录任何不需要的黑色金属在这些材料将自动提取。驼峰安装了一个检查窗口,以提供磁铁功能效率的视觉证据。半岛综合体育官方登录
驼峰磁铁
手动和气动版本均可在所有型号。对于气动版本,一个按钮的推动足以清除所有铁颗粒收集在阀箱腔。可选地,这种类型可以提供电动阀门。气动系统的所有部件均符合ISO和CETOP标准。
●防尘,食品级垫圈
●全不锈钢焊接结构
●可在广泛的板磁铁风格和强度
●卫生结构选择




相关产品
























